Projekto paieška
- Naudingas plotas 139.83 m²
- Papildomai:
- garažas 20.51 m²
- palėpė 0.00 m²
- Užstatymo plotas 135.25 m²
- Bendras plotas 211.44 m²
- Tūris 512.34 m³
- Statinio matmenys 15.94 × 9.49 m
- Statinio aukštis 8.53 m
- Stogo nuolydžio kampas 40.00o
- Stogo plotas 178.00 m²
- Minimalūs sklypo matmenys 22.94 x 17.49 m
Projekto kaina
2220 EUR
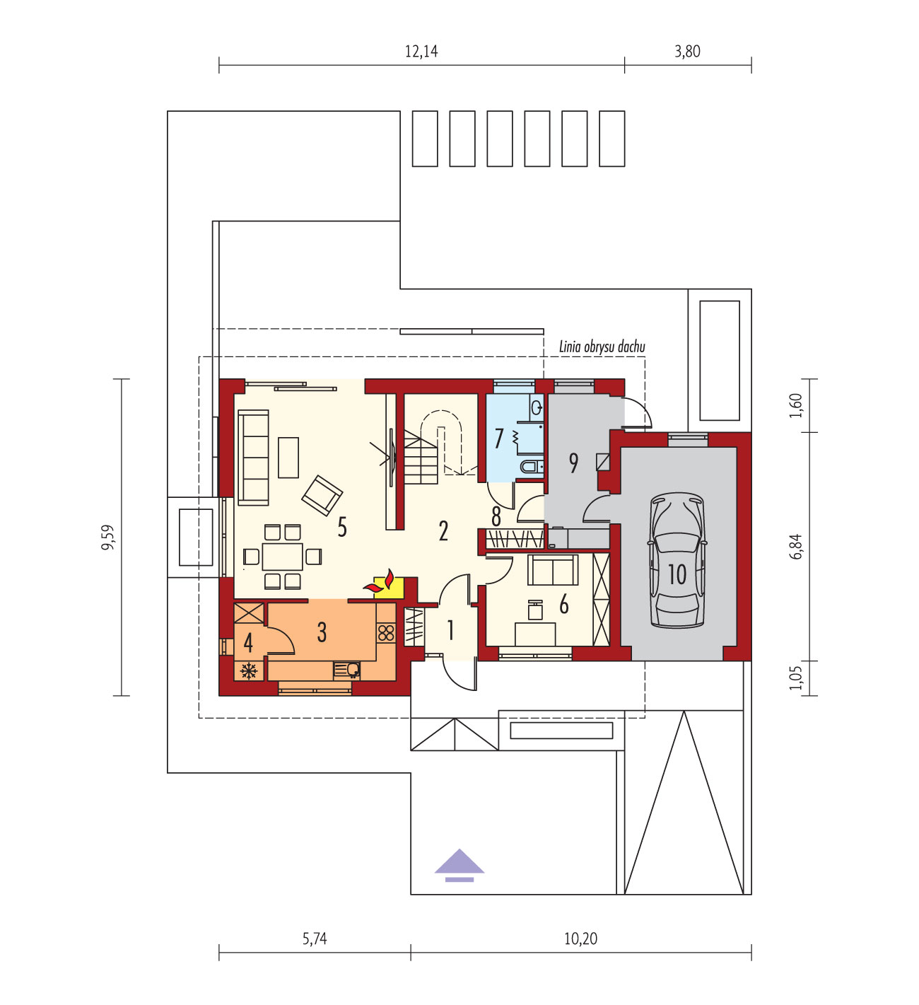
Pirmas aukštas
- 1. Tambūras 2.49 m²
- 2. Holas + laiptai 13.38 m²
- 3. Virtuvė 9.04 m²
- 4. Sandėliukas 2.04 m²
- 5. Bendras kambarys 30.11 m²
- 6. Kabinetas 10.23 m²
- 7. Vonia 4.31 m²
- 8. Drabužinė 3.73 m²
- 9. Katilinė 8.18 m²
- 10. Garažas 20.51 m²
Mansarda
- 1. Koridorius 8.98 m²
- 2. Miegamasis 16.44 m²
- 3. Drabužinė 5.67 m²
- 4. Miegamasis 13.67 m²
- 5. Miegamasis 13.82 m²
- 6. Vonia 5.92 m²